En el diseño de edificaciones, uno de los temas que suele generar dudas es la obligatoriedad de los vestíbulos previos. Muchos proyectistas, especialmente aquellos con menos experiencia, tienden a aplicar esta exigencia de manera indiscriminada en oficinas, hoteles, comercios u hospitales, cuando en realidad el Reglamento Nacional de Edificaciones (RNE) en el Perú establece de forma clara que esta obligación solo corresponde a edificios de vivienda multifamiliar.
Lo que indica el Reglamento Nacional de Edificaciones
El Título III, Norma A.130 y la Norma E.030, junto con sus actualizaciones (RM-355-2018-VIVIENDA, RM-043-2019-VIVIENDA, RM-061-2021-VIVIENDA y RM-191-2021-VIVIENDA), especifican que:
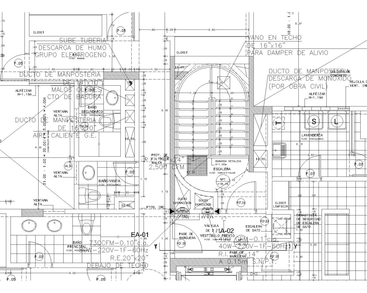
- Los vestíbulos previos son requeridos únicamente en proyectos de vivienda multifamiliar como medida de protección contra la propagación de humo y fuego entre departamentos y las áreas comunes.
- Para otros tipos de edificaciones (oficinas, locales comerciales, hoteles, clínicas, etc.), el RNE no exige la incorporación de vestíbulos previos.
Esto quiere decir que si un edificio no es de vivienda, no está obligado a destinar espacio, ventilación mecánica y costos adicionales para estos ambientes.
Consecuencias de especificarlos donde no corresponde
Cuando un proyectista exige vestíbulos previos en edificios que no son de vivienda:
- Se pierde espacio útil del proyecto
Cada metro cuadrado en un proyecto inmobiliario tiene un valor comercial. Incluir vestíbulos innecesarios significa restar área rentable a oficinas, locales o áreas comunes. - Se incrementan los costos de construcción y operación
Un vestíbulo previo requiere:- Muros cortafuego adicionales.
- Puertas resistentes al fuego.
- Sistemas de ventilación de vestíbulos previos para garantizar seguridad.
Todo esto encarece tanto la inversión inicial como el mantenimiento.
- Se generan retrasos y observaciones innecesarias
Muchas veces, la confusión de los proyectistas poco experimentados deriva en observaciones de parte de revisores o municipalidades, generando pérdidas de tiempo y ajustes en los planos.
Error típico de proyectistas sin experiencia
Un error frecuente es copiar criterios de edificaciones de vivienda multifamiliar y aplicarlos de forma automática a otros proyectos. Esto sucede porque se asume que toda tipología debe tener el mismo nivel de compartimentación, cuando en realidad la norma diferencia claramente los usos de la edificación.
Conclusión
En el Perú, de acuerdo con el Reglamento Nacional de Edificaciones, los vestíbulos previos solo son obligatorios en edificios de vivienda multifamiliar.
Para proyectos de oficinas, comercios, hoteles o clínicas, incorporarlos no solo es innecesario, sino que implica encarecer el proyecto, reducir el área rentable y complicar la ingeniería de ventilación sin justificación normativa.
En Carnot, ayudamos a inmobiliarias, arquitectos e ingenieros proyectistas HVAC a evitar este tipo de errores, garantizando que los proyectos sean seguros, eficientes y ajustados a norma, sin sobrecostos por interpretaciones equivocadas.

